Zum Hauptinhalt springen
Schule Carlbergergasse

Schule Carlbergergasse

Gesamtfläche


Material

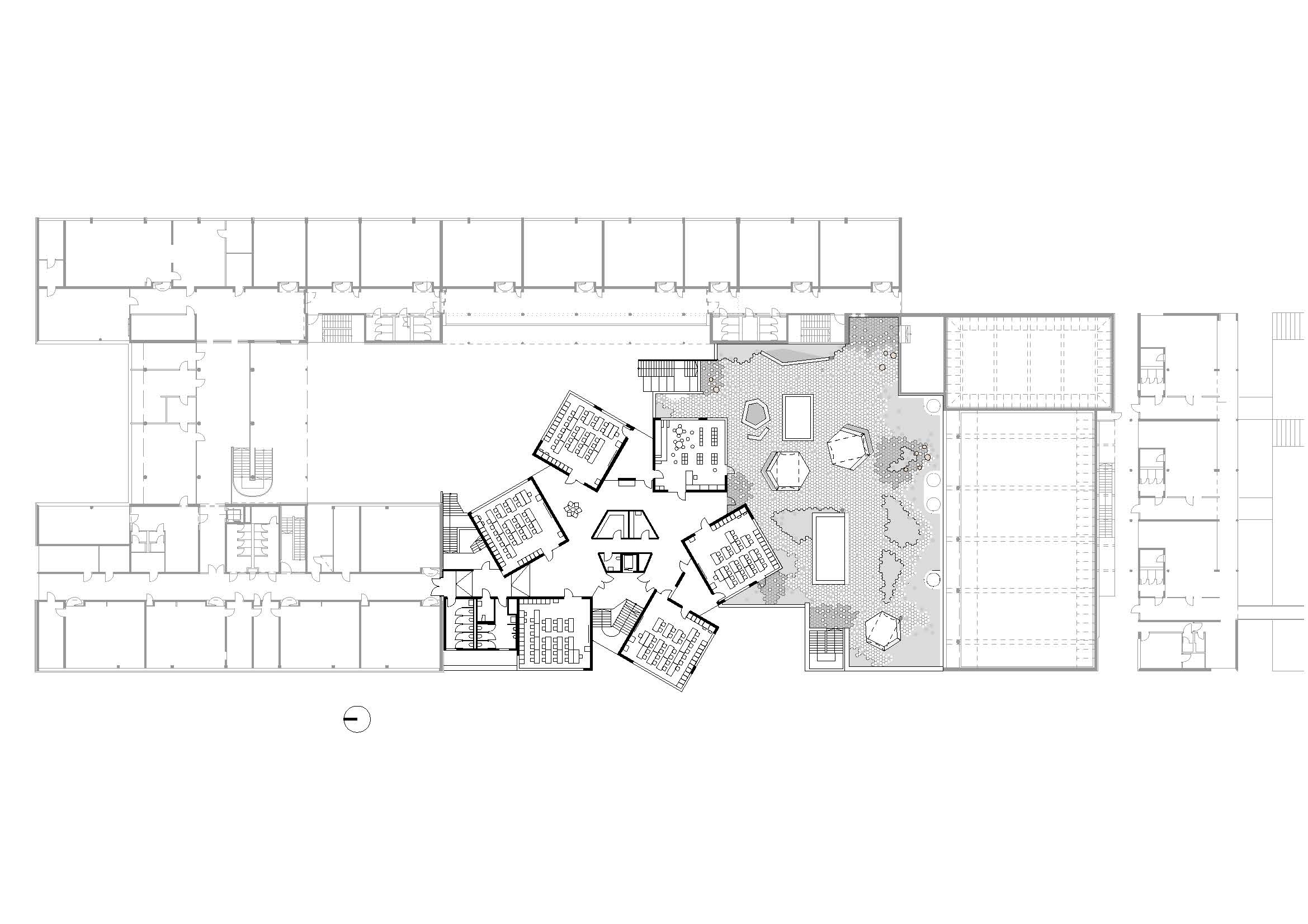
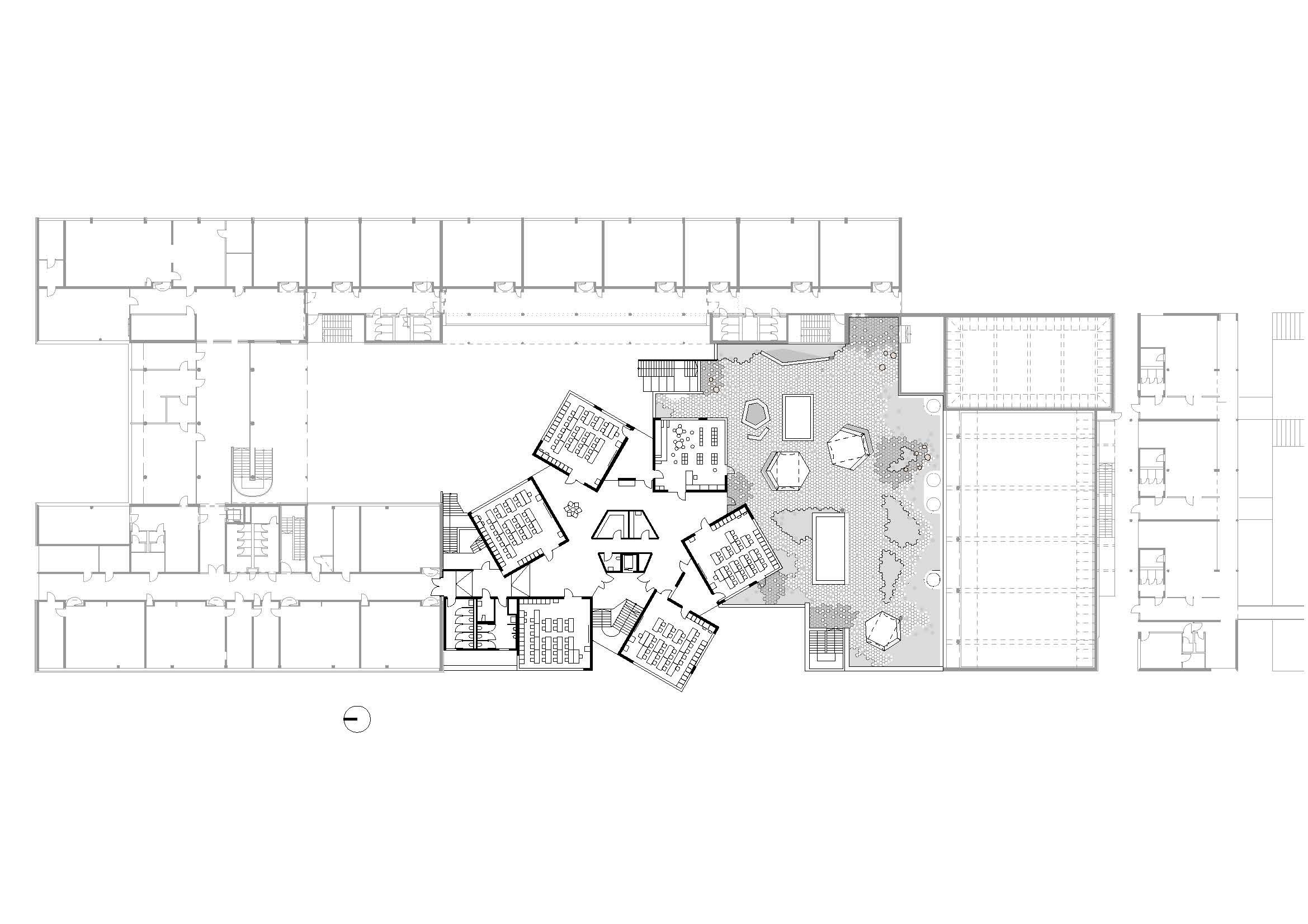
Die quadratischen Grundrisse waren die Inspiration für die Einfräsungen in den Fassadenplatten.

BAUDATEN

  • Technische Daten:
    Gesamtfläche: ca. 1200 m2
  • Material:
    Alucobond 4 mm, in Goldmetallic mit eingefrästen Quadraten
  • Architektur:

    KLAMMER ZELENY ZT GMBH
    Farbkonzept: Elena Henrich

  • Auftraggeber:

    Bauunternehmung Granit Gesellschaft m.b.H.

  • Bauzeit:
    Juli 2019 – September 2020
  • Besonderheiten:
    In den Alucobondplatten mit Metalliceffekt, wurden Quadrate in einem sich wiederholenden Muster eingefräst. Die Idee für diese Einfräsungen entspringt den quadratischen Elementen des Grundrisses. Spitz einschneidende Innenhöfe beleben zusätzliche die Fassade durch Spiegelungen in den Glasflächen.
  • Bildquelle:
    ICC Fassadentechnik GmbH
Wir benutzen Cookies

Wir nutzen Cookies auf unserer Website. Einige von ihnen sind essenziell für den Betrieb der Seite, während andere uns helfen, diese Website und die Nutzererfahrung zu verbessern (Tracking Cookies). Sie können selbst entscheiden, ob Sie die Cookies zulassen möchten. Bitte beachten Sie, dass bei einer Ablehnung womöglich nicht mehr alle Funktionalitäten der Seite zur Verfügung stehen.